︎
News
,
Projects
,
Info
,
Contact
Mark
BIES
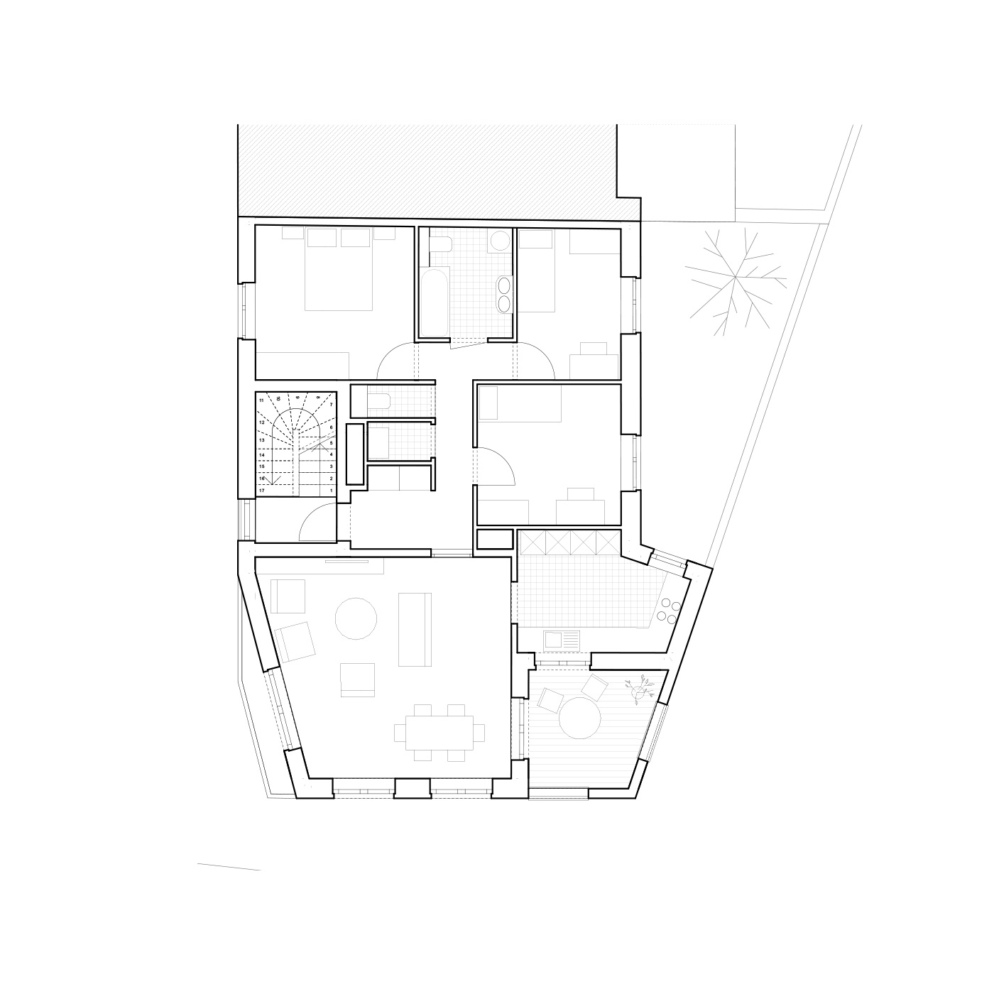
Construction of a housing building
client : Anderlecht
status : Competition - realized
location : Anderlecht, Brussels
photography : Stijn Bollaert
︎ Index
Next ︎