︎
News
,
Projects
,
Info
,
Contact
Mark
COP
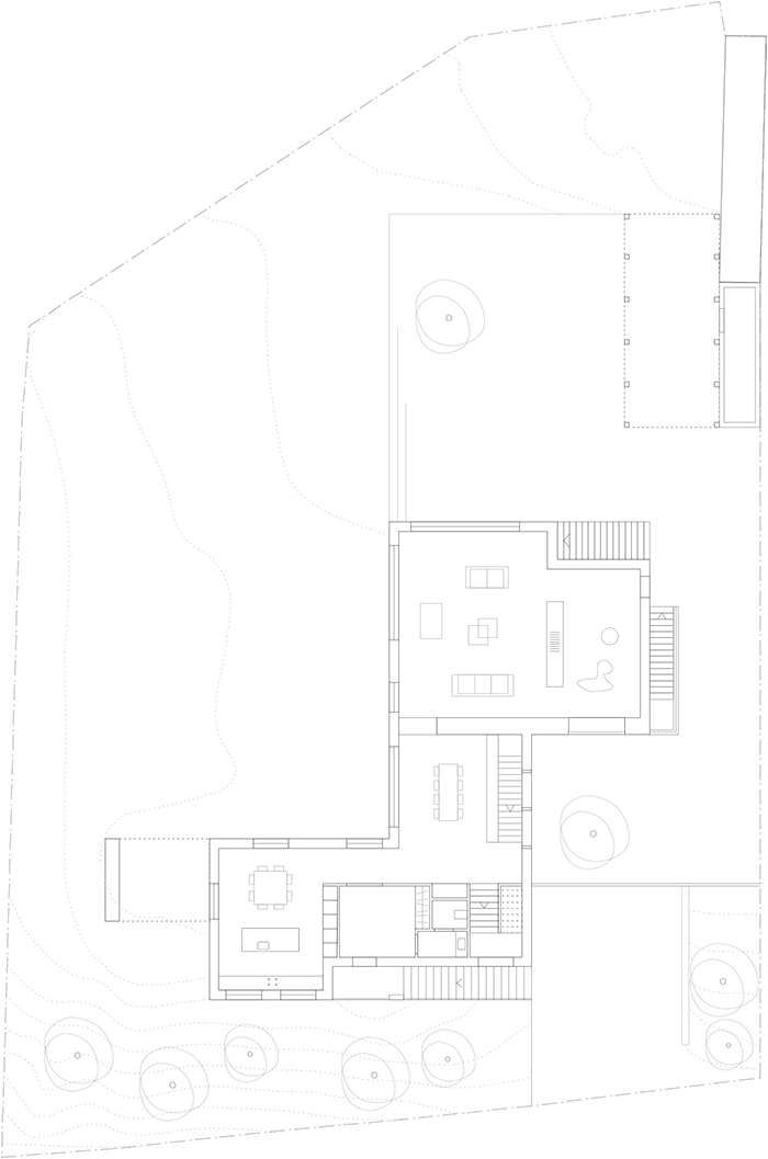
Construction of a villa
client : Private
status : Realized
location : Uccle, Brussels
Team : design by Rapin Saiz Architectes
︎ Index
Next ︎