︎
News
,
Projects
,
Info
,
Contact
Mark
DUBRUCQ
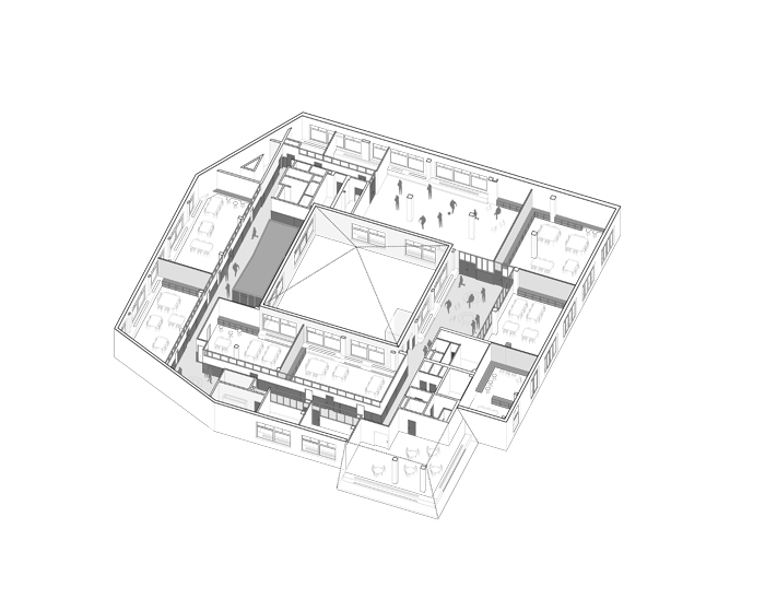
Reconversion of an office building into school
client : asbl POP
status : Competition - 1st, Realized
location : Molenbeek, Belgium
photography : Stijn Bollaert
︎ Index
Next ︎