︎
News
,
Projects
,
Info
,
Contact
Mark
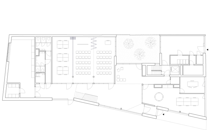
ECLUSIER
Construction of a youth center and 7 social housing units
client : Brussels
status : Competition - 1st, built
location : Brussels, Brussels
team :
in association with Atelier Gigogne
photography : Stijn Bollaert
︎ Projects
Next ︎