︎
News
,
Projects
,
Info
,
Contact
Mark
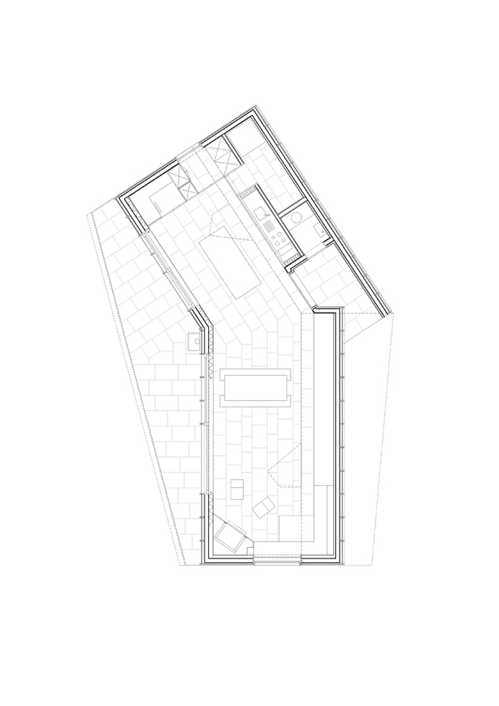
Construction of a garden pavilion
client : Private
status : Realized
location : Ronse, Belgium
photography : Maxime Delvaux & Tim Van de Velde
︎ Index
Next ︎